看过来→合江这些民宿正在招商
来源:川南网
发布时间:2024-12-25 09:33:15
一座承载百年文化历史的庄园——何氏庄园


青砖古墙、碉楼民居、老屋旧物......距合江县福宝古镇1公里的蒲江边,有一座承载百年文化历史的庄园——何氏庄园。何氏庄园是国家级传统村落大亨村传统民居建筑的重要组成部,与福宝古建筑群高低错落、鳞次栉比的屋宇相得益彰,共同构成了“中国山地居民建筑的精华”的独特风貌。

庄园始建于清末,完成于解放初期,建设时间长达三十余年。解放时期,何氏庄园为当地富豪何栋梁的住宅。庄园内原有两座碉楼互为犄角,既可抵御匪患、拱卫豪宅,又可登高放眼、观光赏景。中华人民共和国成立后,庄园曾作为福宝中学下蒲校区使用多年,后改为粮站。上世纪70年代,又改为合江县福宝区阶级斗争教育展览馆,成为当时合江重要的阶级教育基地。上世纪80年代,庄园改为下蒲竹器加工厂,后该厂破产。

2016年,何氏庄园被列入中国传统村落(大亨村)保护名录,先后投入300余万元进行全面修缮。现在的庄园绿瓦青砖、红楼紫脊......,称得上是福宝镇一张靓丽的文化名片。


庄园一角
建设条件:地处川黔渝旅游金三角核心区,位于泸州、重庆周末游“2小时圈”,距国家级文物保护单位福宝古镇1公里左右。占地面积约1000㎡,建筑面积1006㎡(其中碉楼约50㎡)。
建设内容:建设文化特色民宿,对现有房屋主体进行装修装饰,打造18间特色住房和特色餐厅,可探索配套非遗研习馆、文化展览馆等。

何氏庄园平面图
投资金额:150-200万元
效益分析:项目建成后,预计综合年收益50万元
合作方式:租赁房屋
联系人:张逆行
联系电话:13111831001
如今的何氏庄园焕发新的生机,也蕴藏新的商机,期盼有情怀、有文化、有经验的项目主入驻。
探寻百年历史,共筑诗意栖息地——转龙坝菜河园


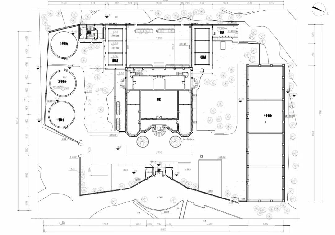
转龙坝菜河园位于合江县白米镇斗笠村,距合江县城14公里,距泸州56公里,是泸州地区现存唯一的私家园林,也是川南清代庄园的典型代表。2007年公布为四川省文物保护单位。
菜河园的建筑布局,巧妙融合自然与人文
转龙坝菜河园坐西北向东南,总占地面积17000多平方米,中轴由三进三院院落(现存二进二院)、西边菜河园园林、北边园林组成。

转龙坝菜何园招商项目平面图
庄园正中为三重厅堂,这是菜河园的主体建筑。整个建筑分别有月台、牌坊式正门、望月楼、前厅、过廊、花厅、正厅、东西厢房,目前保留的建筑是东厢房遗址。整个院落石砌台基,多木穿斗结构房屋,房盖悬山顶、歇山顶结合,规模宏大。


西边是菜河园的主景,体现一个“乐”字。由假山、小溪、水池、幽径等组成,占地面积约1327平方米。水池特引入一道溪水作为水源,流经园区,注入水池,又从水池流出,穿墙而去。据《合江县志》记载:“菜河园林木蓊郁,雅洁宜人。相传陈氏盛时,宴客园中,肴酒自厨置舟,由凿溪流出,园之得名以此。”可见园林的设计者引入溪流这样的活水,是为送酒菜至园内,供宴客园中之用,增加乐趣。

北边是林区,体现了一个“幽”字。有名贵树种香樟、桢楠、百年荔枝树,樟楠掩映,竹影婆娑,神秘而引人注目。

建设内容:
项目坚持保护与开发相结合,一是对转龙坝菜河园庄园建筑修缮、后花园进行修复,包括古建筑房屋修缮、民俗文化展览馆、园林绿化、楼台亭阁修复等;二是完善转龙坝菜河园旅游基础配套设施,打造集休闲、娱乐、农耕、餐饮、住宿为一体的旅游综合体。
建设条件:
转龙坝菜河园项目总占地面积约25亩,由三进三院院落(现存二进二院)、西边菜河园园林、北边园林组成,是泸州地区现存唯一的私家园林,也是川南清代庄园的典型代表。2007年公布为四川省文物保护单位。近年来我县已陆续对菜河园进行了保护性修缮。已完成前期修缮设计方案并完成了部分修缮,具备项目入驻条件。
项目地点:合江县白米镇斗笠村
投资金额:30000万元
合作方式:企业独资、合作
联系方式:周先生 0830-5218976 罗女士 0830-5229631
赤水河畔雅集之地——先市镇传统村落民宿

国家非遗,重点文物,在地文化丰富;
传统村落,空间美学,基础条件优越;
赤水河畔,广阔天地,理想大有可为;
人间烟火,诗和远方,一切由你定义!


第一层平面图(面积:342.09平方米)

第二层平面图(面积:304.59平方米)

国家非遗,重点文物,在地文化丰富;
传统村落,空间美学,基础条件优越;
赤水河畔,广阔天地,理想大有可为;
人间烟火,诗和远方,一切由你定义!


第一层平面图(面积:342.09平方米)

第二层平面图(面积:304.59平方米)
建设内容:
社会业主进行内部装修、改造利用1500余平方米,着重于中高端餐饮及部分民宿产业。
建设条件:
先市镇距合江县城20公里,距泸州市区40余公里,该项目位于赤水河畔,环境优美;紧邻先市酱油赤水河庄园,地理位置优越。先市酱油赤水河庄园拥有我国连续使用时间最长、保护最完整的天然晒露发酵场和酱油酿造作坊。先市酱油酿造作坊是全国重点文物保护单位,被誉为“中国的酱油天然博物馆”;先市酱油传统酿造技艺是国家级非物质文化遗产代表性项目,被称为中国酱油传统酿造活化石。先市镇“工农旅”融合发展,正在打造先市酱油特色小城镇,市场前景广阔,镇内尚无民宿餐饮综合体,满足旅游市场消费需求;依托洗网滩生态修复、酱油古法酿造文化廊道等项目,正在建设沿河廊道、酱油文化广场等设施,基础配套完善。
项目地点:合江县先市镇
投资金额:600万元
合作方式:租赁
联系方式:周先生 0830-5218976 罗女士 0830-5229631
邂逅民国风情,品味中式美学——周祠民宿


周祠坐落于九支镇安居坝,占地1153平方米,建筑面积1052平方米。周祠全称为“周母孝祠”,是20世纪20年代末期,民国革命军第二十五军军长、贵州省主席周西成为其母亲修建的氏祠,属近代中西合璧的庭院别墅式建筑。


周祠平面图(面积:2334.21平方米)
建设内容:
以周祠为核心,以民国建筑为基调,打造民国文化特色民宿点。
建设条件:
九支镇与贵州赤水一桥之隔,区位优势明显。周祠已列为省级文物保护单位,是泸州市宗祠中保存最完整的祠堂,其建筑布局继承了朱熹《家礼》中的建祠模式,即大门—祭堂—寝堂。目前项目已完成相关设施建设,具备项目入驻条件。
项目地点:合江县九支镇
投资金额:1亿元
合作方式:独资、合资
联系方式:周先生 0830-5218976 罗女士 0830-5229631
了解更多合江民宿招商项目
请扫描下图二维码


本文来源:合江文旅